Description
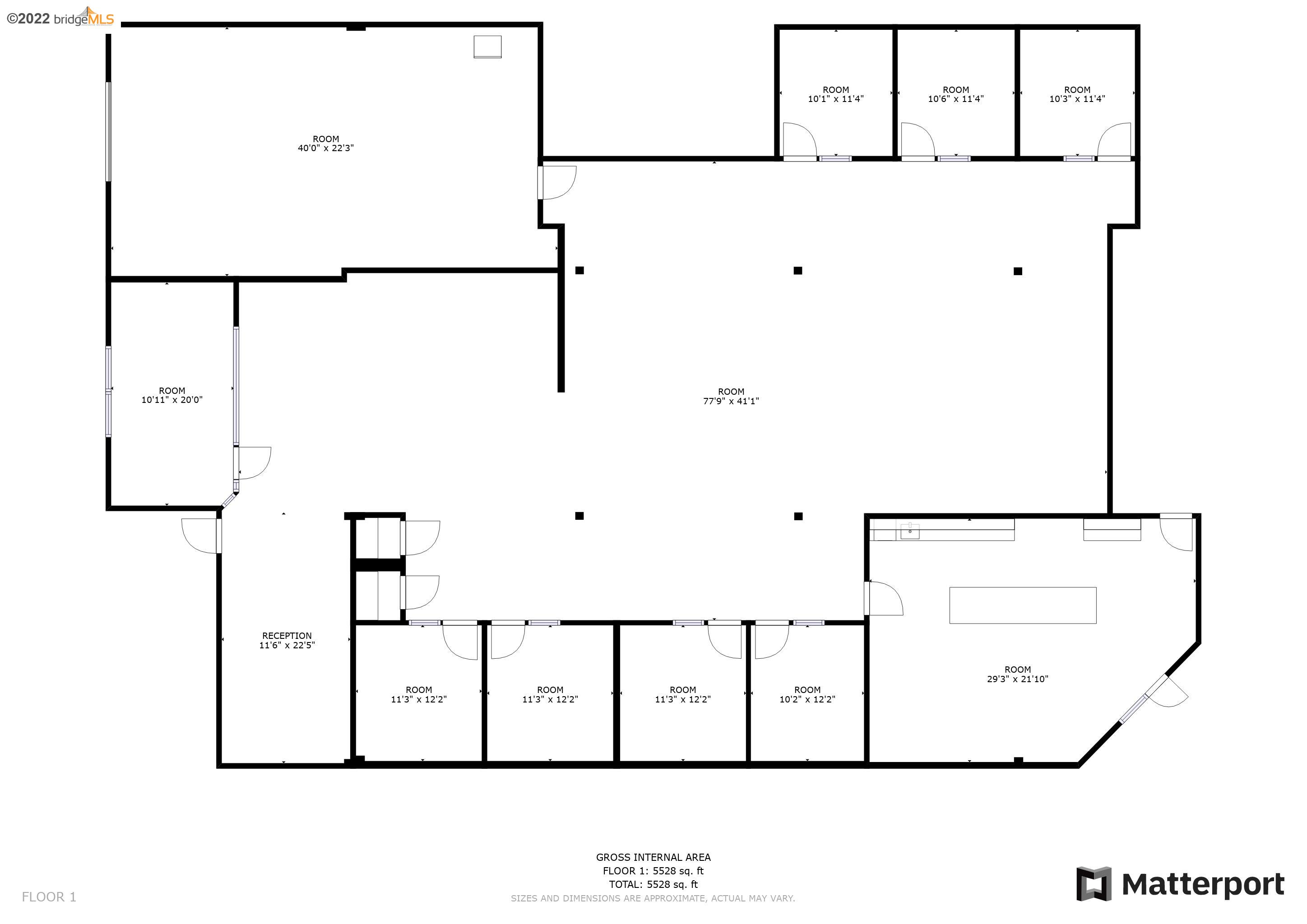
Welcome to EMBARCADERO COVE Conveniently located at the heart of the Bay Area, Embarcadero Cove is close in proximity to freeways, BART, ferries, Amtrak, the Oakland International Airport, and just a 20-minute drive to downtown San Francisco making local as well as international travel wonderfully accessible. Surrounded by waterfronts and marinas, the property is just a short walk to the Brooklyn Basin and has easy access to BART, Jack London Square and the Uptown entertainment district, strengthening the connection between Embarcadero Cove and the rest of the city. The space is move-in ready, sprinklered, and conditioned. It consists of approximately 6,105 SF and comes with 7 private offices, reception, conference room, large open space, 2 phone rooms, a warehouse with roll-up door, and an awesome kitchen/lounge area. There is an abundance of skylights and natural light. The suite is accessed from the parking as well as the common corridor. Potential freeway signage. On-site parking. Zoning M-40 Light Industrial allowing many uses. No Cannabis.
Location
Listed By
Similar Listings
MLS# 41008166
ACTIVE
$10,000
Listing Agent: Kelly Klingler
Listing Office: Wells & Bennett REALTORS

MLS# 41132407
ACTIVE
$8,950
Listing Agent: Michelle Stornetta
Listing Office: Infinity Properties

MLS# 41115614
ACTIVE
$8,750
Listing Agent: Milly Barros
Listing Office: EQUITY FIRST REAL ESTATE

MLS# 41129936
ACTIVE
$8,500
Listing Agent: Aileen Matteson
Listing Office: RE/MAX Accord

MLS# 41117871
ACTIVE
$8,100
Listing Agent: Faz Binesh
Listing Office: Coldwell Banker Realty

No similar listings found
Unfortunately, we don't have any similar listings at the moment. Please remove or change some of the selected filters.

Bay East ©. CCAR ©. bridgeMLS ©. Information Deemed Reliable But Not Guaranteed. This information is being provided by the Bay East MLS, or CCAR MLS, or bridgeMLS. The listings presented here may or may not be listed by the Broker/Agent operating this website. This information is intended for the personal use of consumers and may not be used for any purpose other than to identify prospective properties consumers may be interested in purchasing. Updated: 29th April, 2026 7:43 AM (UTC)
Listing Agent: Kelly Klingler
Listing Office: Wells & Bennett REALTORS

